Сыктывкар, Дырнос 108/8 Сыктывкар, Дырнос 108/8
Каркасные домокомплекты

Проектируем и производим
каркасные домокомплекты без строительных рисков

Под самостоятельную сборку: документация, маркировка, без крана и пил

Документация и маркировка
Без крана и пил
Точность до миллиметра
Изготовление 2 недели
10+ лет опыта
50+ домов

Сыктывкар, Дырнос 108/8

Типовые проекты каркасных домов

Показаны примеры реализованных проектов. Мы изготавливаем только силовой каркас — домокомплект без кровли, утепления и отделки.

  • Все проекты
  • Family
  • Barn
  • Classic
  • Scandi
  • 1 этаж
  • 2 этажа
Планировка Планировка домокомплекта Family 80 м² — Сыктывкар
Серия Family

Family 80 Цена за силовой каркас: 1 000 000 ₽

Каркасный домокомплект · 80 м²

Габариты: 12,5 × 7,7 м
Площадь: 80 м² Этажность: 1 этаж Спальни: 3 Санузлы: 1 Фундамент: ЖБ плита, ЖБ сваи Планировка: 2 комнаты + кухня-гостиная + санузел + котельная
Планировка Планировка домокомплекта Barn 70 м² — Сыктывкар
Серия Barn

Barn 70 Цена за силовой каркас: 840 000 ₽

Каркасный домокомплект · 70 м²

Габариты: 14 × 7 м
Площадь: 70 м² Этажность: 1 этаж Спальни: 2 Санузлы: 1 Фундамент: ЖБ плита, ЖБ сваи Планировка: 2 комнаты + кухня-гостиная + санузел + котельная
Планировка Планировка домокомплекта Barn 100 м² — Сыктывкар
Серия Barn

Barn 100 Цена за силовой каркас: 1 200 000 ₽

Каркасный домокомплект · 100 м²

Габариты: 16,7 × 8 м
Площадь: 100 м² Этажность: 1 этаж Спальни: 3 Санузлы: 1 Фундамент: ЖБ плита, ЖБ сваи Планировка: 3 комнаты + кухня-гостиная + санузел + котельная
Планировка 1 этаж Планировка 1 этажа домокомплекта Barn 125 м² — Сыктывкар
Планировка 2 этаж Планировка 2 этажа домокомплекта Barn 125 м² — Сыктывкар
Серия Barn

Barn 125 Цена за силовой каркас: 1 500 000 ₽

Каркасный домокомплект · 125 м²

Габариты: 14,5 × 7 м
Площадь: 125 м² Этажность: 2 этажа Спальни: 3 Санузлы: 1 Фундамент: ЖБ плита, ЖБ сваи Планировка: 3 комнаты + кухня-гостиная + санузел + котельная
Планировка Планировка домокомплекта Classic 64 м² — Сыктывкар
Серия Classic

Classic 64 Цена за силовой каркас: 800 000 ₽

Каркасный домокомплект · 64 м²

Габариты: 6 × 8 м
Площадь: 64 м² Этажность: 2 этажа Спальни: 1 Санузлы: 1 Фундамент: ЖБ плита, ЖБ сваи Планировка: 1 комната + кухня-гостиная + санузел + котельная
Планировка Планировка домокомплекта Family 70 K3 — Сыктывкар
Серия Family

Family 70 K3 Цена за силовой каркас: 875 000 ₽

Каркасный домокомплект · 70 м²

Габариты: 11 × 7,7 м
Площадь: 70 м² Этажность: 1 этаж Спальни: 2 или 3 Санузлы: 1 Фундамент: ЖБ плита, ЖБ сваи Планировка: 2 или 3 комнаты + кухня-гостиная + санузел + котельная
Планировка Планировка домокомплекта Classic 90 К4 — Сыктывкар
Серия Classic

Classic 90 К4 Цена за силовой каркас: 1 112 500 ₽

Каркасный домокомплект · 90 м²

Габариты: 13,3 × 8 м
Площадь: 90 м² Этажность: 1 этаж Спальни: 4 Санузлы: 1 Фундамент: ЖБ плита, ЖБ сваи Планировка: 4 комнаты + кухня-гостиная + санузел + котельная
Планировка Планировка домокомплекта Scandi 100 м² — Сыктывкар
Серия Scandi

Scandi 100 Цена за силовой каркас: 1 250 000 ₽

Каркасный домокомплект · 100 м²

Габариты: 13 × 9 м
Площадь: 100 м² Этажность: 1 этаж Спальни: 4 Санузлы: 1 Фундамент: ЖБ плита, ЖБ сваи Планировка: 4 комнаты + кухня-гостиная + санузел + котельная
Планировка Планировка домокомплекта Classic 100 v2 м² — Сыктывкар
Серия Classic

Classic 100 v2 Цена за силовой каркас: 1 250 000 ₽

Каркасный домокомплект · 100 м²

Габариты: 14,1 × 9,6 м
Площадь: 100 м² Этажность: 1 этаж Спальни: 3 Санузлы: 1 Фундамент: ЖБ плита, ЖБ сваи Планировка: 3 комнаты + кухня-гостиная + санузел + котельная
Планировка Планировка домокомплекта Classic 90 К3 — Сыктывкар
Серия Classic

Classic 90 К3 Цена за силовой каркас: 1 125 000 ₽

Каркасный домокомплект · 90 м²

Габариты: 13,3 × 8 м
Площадь: 90 м² Этажность: 1 этаж Спальни: 2 Санузлы: 1 Фундамент: ЖБ плита, ЖБ сваи Планировка: 2 комнаты + кухня-гостиная + санузел + котельная
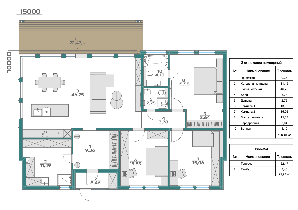
Планировка Планировка домокомплекта Scandi 126 м² — Сыктывкар
Серия Scandi

Scandi 126 Цена за силовой каркас: 1 575 000 ₽

Каркасный домокомплект · 126 м²

Габариты: 15 × 10 м
Площадь: 126 м² Этажность: 1 этаж Спальни: 3 Санузлы: 1 Фундамент: ЖБ плита, ЖБ сваи Планировка: 3 комнаты + кухня-гостиная + санузел + котельная

Что входит в домокомплект

Мы изготавливаем только силовой домокомплект.
Это комплект несущих конструкций дома, подготовленных для сборки на участке.

Входит в домокомплект

  • Силовой каркас дома — Стены, перекрытия и стропильная система.
  • Проект и рабочие чертежи — Документация для производства и сборки.
  • Маркировка всех элементов — Каждая деталь промаркирована для быстрой и точной сборки.
  • Консультации при сборке — Сопровождение и ответы на вопросы в процессе монтажа.

Не входит в домокомплект

  • Фундамент
  • Утепление
  • Кровля
  • Окна и двери
  • Инженерные системы
  • Внутренняя и внешняя отделка

На фото показаны схемы, процесс сборки и пример реализованного дома. Домокомплект включает только силовой каркас и не является домом "под ключ".

Кому подойдёт домокомплект — и кому нет

Честно объясняем, в каких случаях формат силового каркаса — лучший выбор

Ваш формат

Кому подойдёт

Самостоятельная сборка
Контроль бюджета
Поэтапное строительство
Удалённый участок
Заводская точность
Поддержка при сборке
Лучше под ключ

Не подойдёт

Нужен дом «под ключ»
Минимальное вовлечение
«Привезли — готово»
Без контроля этапов
Полная ответственность

Не уверены, подходит ли вам формат?

Обсудим вашу ситуацию и поможем принять решение

Наше производство

Изготавливаем каркасные домокомплекты на собственном производстве. Все элементы точно подогнаны и промаркированы.

Производство домокомплектов в Сыктывкаре — деревообрабатывающие станки
Склад пиломатериалов
Станок в работе
Собственный цех в Сыктывкаре
Заводская точность и контроль качества
Склад пиломатериалов для домокомплектов в Сыктывкаре
Современное оборудование
Маркировка всех элементов
Поддержка при сборке

Как мы работаем

От заявки до сборки на участке — прозрачный процесс без скрытых этапов

1

Заявка

Обсудим задачу и сроки

2

Расчёт

Подберём проект и комплектацию

3

Чертежи

Готовим КД и маркировку для сборки

4

Производство

Изготавливаем домокомплект на производстве

5

Доставка

Привозим на участок

Сыктывкар и окрестности
6

Сборка

Вы собираете, мы консультируем по шагам

1

Заявка

Обсудим задачу и сроки

2

Расчёт

Подберём проект и комплектацию

3

Чертежи

Готовим КД и маркировку для сборки

4

Производство

Изготавливаем домокомплект на производстве

5

Доставка

Привозим на участок

Сыктывкар и окрестности
6

Сборка

Вы собираете, мы консультируем по шагам

Домокомплект силового каркаса. Сборка — вашей бригадой, мы консультируем.

Гарантии и ответственность

Гарантия 12 месяцев на силовой каркас.
Отвечаем за комплектность и соответствие проекту.

Часто задаваемые вопросы

Ответы на популярные вопросы о каркасных домокомплектах

Комплектация

Что именно входит в домокомплект, а что нет?

Мы изготавливаем силовой каркас дома: несущие стены, перекрытия, стропильную систему. В домокомплект не входят кровля, утепление, окна, инженерия и отделка — вы не переплачиваете за то, что хотите выбрать сами.

Сборка

Можно ли собрать дом самому, если я не строитель?

Да. Домокомплект спроектирован так, чтобы его мог собрать человек без строительного опыта. Все элементы промаркированы, есть чертежи и схемы, мы консультируем во время сборки.

Сборка

Нужна ли спецтехника или кран?

Нет. Для сборки не требуется кран или тяжелая техника. Достаточно базового инструмента и рук — это позволяет строить даже в труднодоступных местах.

Доставка

Можно ли строить дом в удалённом или сложном по логистике месте?

Да. Наши домокомплекты часто выбирают для участков, куда сложно завезти технику. Доставка — обычным транспортом, разгрузка возможна вручную.

Качество

Как вы исключаете ошибки при строительстве?

Ошибки исключаются на этапе проектирования и производства: нагрузки рассчитаны инженерами, элементы изготовлены с точностью до миллиметра, ничего не нужно подрезать «на глаз».

Цены

Почему ваши домокомплекты дешевле кирпичных и бетонных домов?

Мы не экономим на качестве — мы исключаем лишние этапы: меньше материалов, быстрее сборка, нет переплаты за избыточные решения.

Проекты

Можно ли изменить типовой проект под себя?

Да. Типовой проект — это база. Вы можете изменить планировку, количество комнат, назначение помещений (например, сделать сауну).

Применение

Подходит ли домокомплект для постоянного проживания?

Да. Домокомплекты рассчитаны на круглогодичное проживание и северные условия. Технология широко используется в Финляндии и Канаде при схожем климате.

Начните строительство дома правильно

Готовы обсудить ваш дом?

Оставьте заявку — мы перезвоним, уточним задачи и подготовим предварительный расчёт под ваш участок и бюджет.

Консультацию по проектированию и конструктиву
Подбор проекта под участок и бюджет
Сопровождение от первого звонка до сборки
Отправка...
Спасибо за заявку! Мы свяжемся с вами в ближайшее время.

Как нас найти

Работаем локально в Сыктывкаре, район Дырнос — удобно заехать и обсудить проект

Адрес

Сыктывкар, Дырнос 108/8

Ориентир: серый ангар рядом со Станцией техосмотра

Телефон

+7 (999) 295-10-00